5 Reasons Construction Managers Choose SmartDraw

SmartDraw makes it easy for construction managers to create accurate, safety-compliant floor plans and professional estimates using their own product libraries. No CAD expertise required.

1.

Easy to Get Expert Results

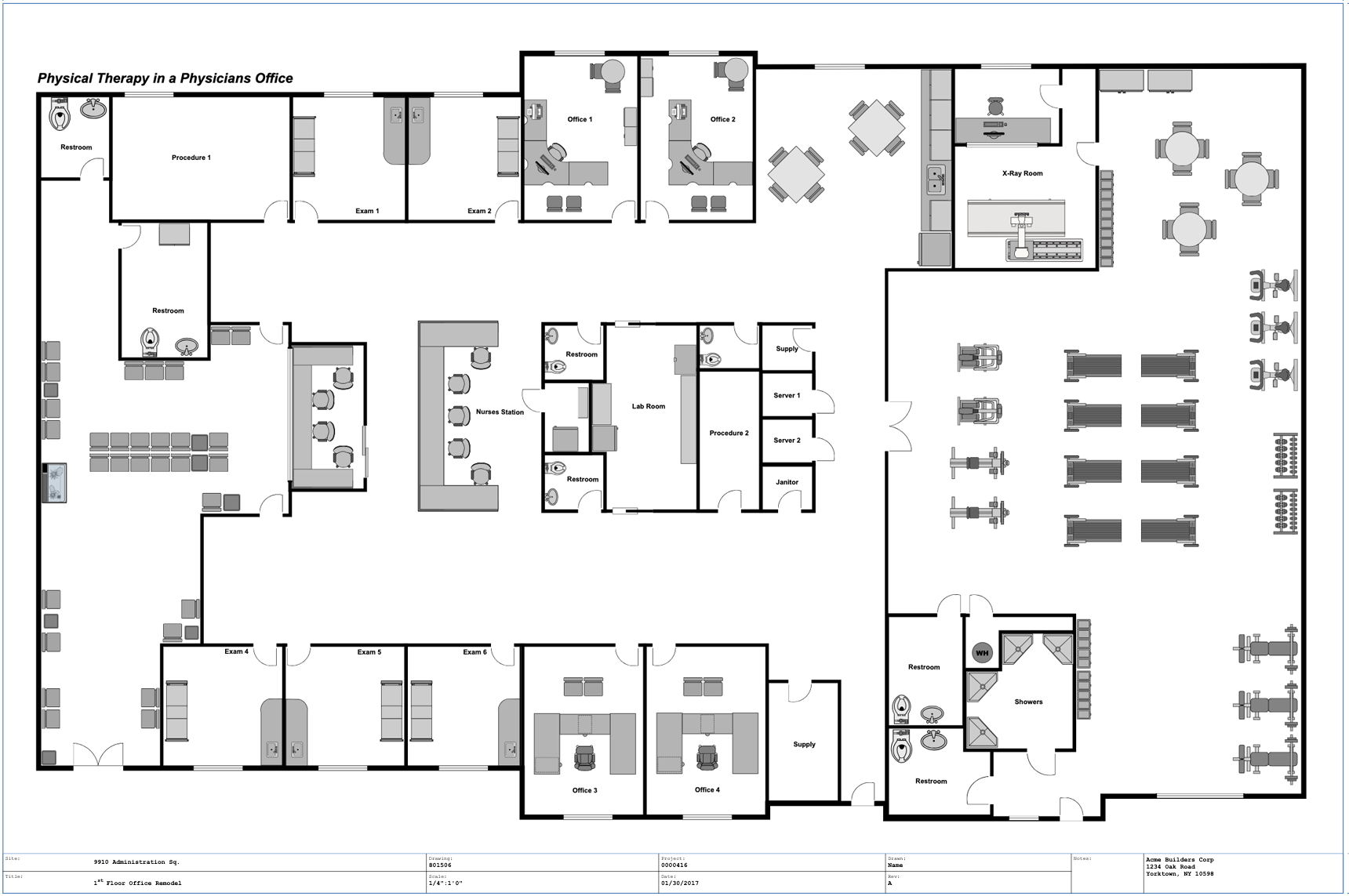
SmartDraw makes it easy to create accurate scaled diagrams that follow OSHA rules without requiring specialized CAD training. Create floor plans for both residential and commercial spaces, building layouts, site plans, and even landscape designs easily.

Office plan with annotation layer

2.

Start with an Existing Floor Plan

While SmartDraw makes creating floor plans easy, you can skip that step and import an existing floor plan as a PDF or image to serve as the foundation for a new plan or proposal.

Floor plan on top of satellite image

3.

Build Estimate Proposals Using Your Own Product Libraries

SmartDraw has a vast collection of symbols, but you can truly customize your plan using your own product catalog. Import symbols, apply scale, and add shape data. Plus, SmartDraw can count items automatically and generate visual manifests to support estimates and proposals.

Generate a manifest

4.

Enterprise Support

As an enterprise customer, you will have your own dedicated support rep for onboarding, training, and more.

Dedicated customer success manager

5.

Simple Administration

SmartDraw works hand in glove with your existing IT infrastructure without disruption to maximize what you've already invested in. You can provision users with SSO, save files to your own preferred storage solution, and enjoy enterprise-level security.

Work with existing tech stack

Contact us to learn how SmartDraw can streamline your estimating, proposal, and planning process.

Get a Demo

By clicking "Submit", you are agreeing to our Terms of Service and our Privacy Policy.

See Why Public Safety and Construction Teams Trust SmartDraw

Contact Us

"Before SmartDraw, our reports were created in a mix of Word, PowerPoint, Visio, and paper, leading to inconsistent formats and extra work. SmartDraw gave us a single, standardized platform for accident and incident documentation, making our reports clearer, more consistent, and easier to manage."

Michael Johnson
Battalion Chief, Loudoun Fire and Rescue

"Our design and construction company oversees custom home builds and remodels from initial design to completion. SmartDraw provided an affordable, user-friendly, and efficient tool for making rapid adjustments to floor plans without relying on architects or designers for every minor change. The fast setup and intuitive tools really helped us streamline our workflow."

Jake Goodew
Project Manager, Arete Construction

"The Crime Scene Unit sought to upgrade its diagramming software to enhance the quality of crime scene sketches used as discoverable documents in criminal investigations. After evaluating available options, we determined that SmartDraw best met our needs due to its ability to produce detailed, forensically accurate diagrams that integrate seamlessly with existing scene documentation tools, including photographs and 3D imaging."

Massi A. Martin, DPA
Commanding Officer, Office of Forensic Science, Crime Scene Unit, Philadelphia Police Department

"For pre-incident plans, we're able to create clear, easy-to-follow diagrams with directions and annotations that our firefighters can quickly understand on scene. For investigations, the software lets us produce accurate, professional drawings that support incident reconstruction. Overall, we've been very pleased with SmartDraw and plan to continue using it as part of our daily operations."

Read the full case study.
Jonathan Shim
Captain, Office of the Fire Marshal, Howard County Department of Fire Rescue Services

"SMCFD needed a user-friendly way to create pre-fire plans. SmartDraw allows us to import a PDF and mark it up for utility shutoffs and access points quickly and easily."

Matthew Adelman
Battalion Chief Preparedness, South Montgomery County Fire Department

"As our design services grew, pen and paper simply couldn't keep up. SmartDraw gave us the modern tools we needed for creating space plans and floor plans. It's proven to be a great tool for our sellers to quickly provide customers with feedback on dimensions and fit."

Aaron Schulz
Director of Inside Sales Channels & Sales Operations, National Business Furniture

"SmartDraw has all the tools we need to create site and venue maps for our events. We can import a satellite view of an area and overlay our event layout as a scaled drawing. Not only is SmartDraw intuitive, but their support is excellent."

Emily Rivera
Director, Vendor of Production Services, National MS Society

Click the link below to see all customer success stories.

SmartDraw is Used by Over 85% of the Fortune 500

3M logo
Amazon logo
AT&T logo
Cisco logo
Honeywell logo
Intel logo
Johnson and Johnson logo
Mariott logo
Abbott Labs logo
Motorola logo
Northrop Grumman logo
Oracle logo
Pfizer logo
Thermo Fisher Scientific logo
Verizon logo
Wells Fargo logo
3M logo
Amazon logo
AT&T logo
Cisco logo
Honeywell logo
Intel logo
Johnson and Johnson logo
Mariott logo
Abbott Labs logo
Motorola logo
Northrop Grumman logo
Oracle logo
Pfizer logo
Thermo Fisher Scientific logo
Verizon logo
Wells Fargo logo

Trusted by Millions of Users

SmartDraw is easy to do business with according to G2 SmartDraw has best roi according to G2 SmartDraw is easy to setup with according to G2 SmartDraw is ranked top 50 in CAD Users love SmartDraw on G2 SmartDraw is a leader according to G2 SmartDraw is easy to implement according to G2 SmartDraw has best in class support according to G2 SmartDraw is a easy to admin according to G2
SmartDraw reviews sourced by G2