Whether you're designing a new plumbing system or documenting an existing layout, SmartDraw makes it easy to create professional plumbing drawings. Draw pipes and drag and drop industry-standard symbols to complete your design.
Already have a floor plan or existing blueprint? You can import a PDF or image into SmartDraw and scale it. Use any existing plan as a foundation and layer your own design on top. Save time by not recreating existing layouts from scratch.
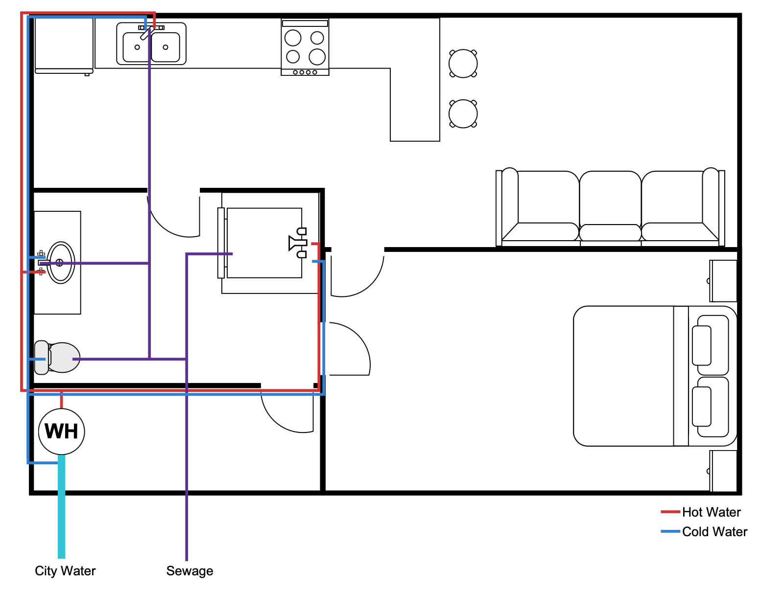
Layers let you separate your drawing into distinct views and focus on the system you're working on. You can create a floor plan and then manage your plumbing layout, electrical plan, and HVAC information separately and make edits without affecting other parts of your plan. Use a scale-independent annotation layer to keep track of information like the drawing's author and other settings.
SmartDraw is easy to work with no matter what other apps you use. You can add plumbing drawings to:
Share your plumbing design with anyone, even if they don't own a copy of SmartDraw, with a link. You can also easily export any diagram as a PDF or common image formats like PNG or SVG.
Have a question? Chat or email us. SmartDraw support is in-house and free!
SmartDraw makes it easy to work with a team on any plumbing drawing or design.
You can work on the same plumbing layout in real time. Your team or client can easily share comments and feedback.
SmartDraw also works where you already communicate with your team. You can collaborate on plumbing drawings in Microsoft Teams®, Slack, or Confluence.
SmartDraw comes with built-in plumbing drawing examples as well as electrical plans and other engineering drawings you can d=edit to help you get started.
Start with a plumbing drawing template that you can find in the Engineering category under New Document on your Dashboard. You can also open one of the existing plumbing examples in this category.
Click Insert and choose PDF to bring in an existing plan as your foundation. You'll be able to scale it and layer your new design on top.
Use Units & Scale under Document Setup to define the scale you want to use. You can set and change this scale at any time. SmartDraw has a set of built-in standard engineering, architectural, and metric scales, and you can even set your own custom scale as needed.
Draw your pipes and drag plumbing symbols from the left SmartPanel onto your drawing area.
Export your drawing as a PDF or PNG. Or you can share your plumbing drawing using a link with clients, contractors, and engineers online.
SmartDraw makes plumbing design easier than traditional CAD tools. You get easy drag-and-drop plumbing symbols, the ability to import and edit existing PDF plans, real-time collaboration, and no training required. Get CAD power, without CAD complexity.
Whether you're creating plumbing schematic layouts or permit plans, SmartDraw gives you expert confidence and professional results.
Yes. SmartDraw lets you import PDF files or images so you can update or trace over existing floor plans to create new plumbing layouts.
SmartDraw has extensive plumbing libraries with easy to use with drag-and-drop functionality.
Yes. Export as PDF, PNG, JPG, or share via web link.
Discover why SmartDraw is the best plumbing design software.