Wiring Diagram

Easily make wiring diagrams, circuit plans, schematics and more

With SmartDraw, You Can Create Many Different Types of Diagrams, Charts, and Visuals

Learn More

What is a Wiring Diagram?

A wiring diagram is a simple visual representation of the physical connections and physical layout of an electrical system or circuit. It shows how the electrical wires are interconnected and can also show where fixtures and components may be connected to the system.

Back to top
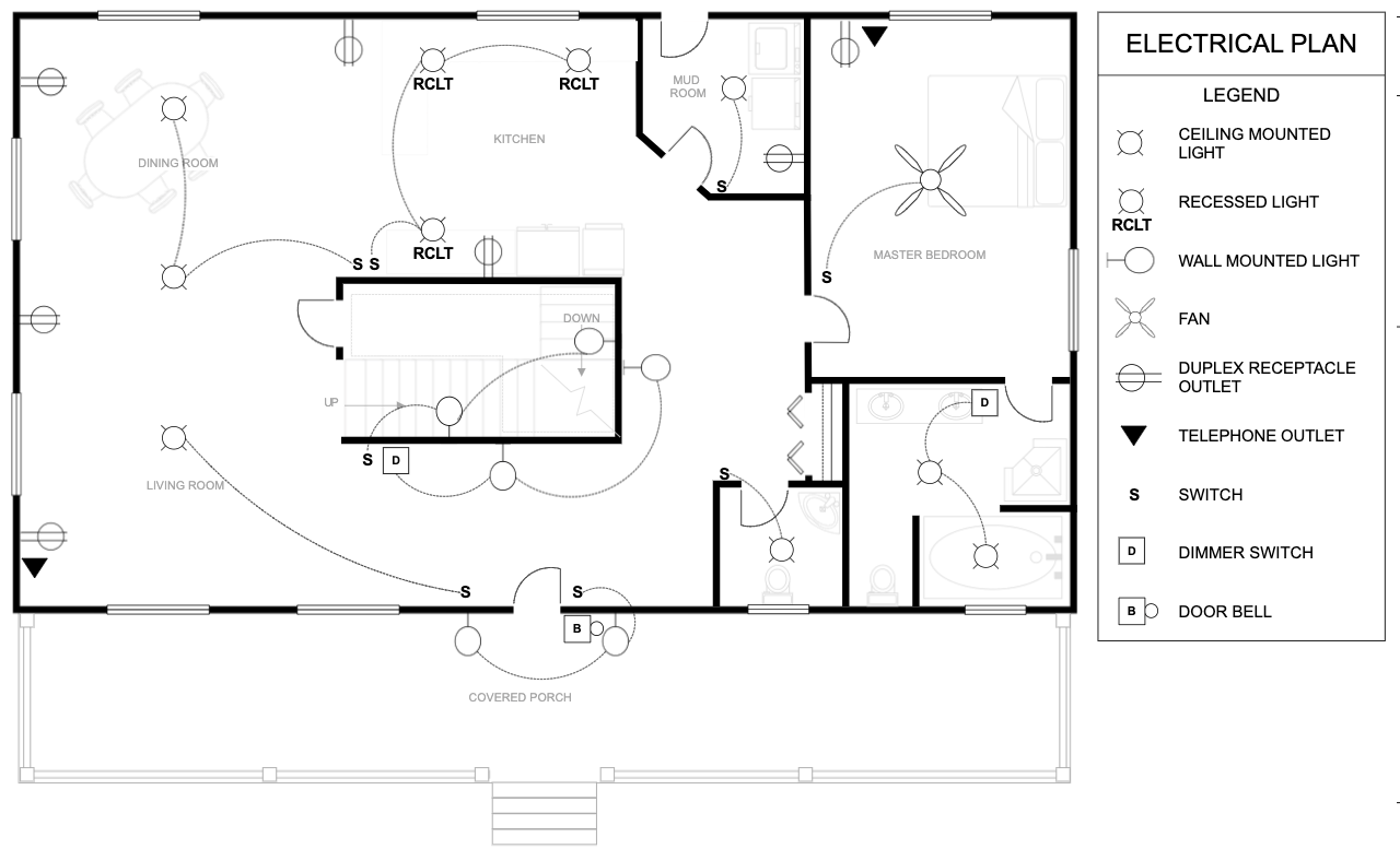
Electrical wiring diagram
Electrical plan

When and How to Use a Wiring Diagram

Use wiring diagrams to assist in building or manufacturing the circuit or electronic device. They are also useful for making repairs.

DIY enthusiasts use wiring diagrams but they are also common in home building and auto repair.

For example, a home builder will want to confirm the physical location of electrical outlets and light fixtures using a wiring diagram to avoid costly mistakes and building code violations.

Back to top

How to Draw a Circuit Diagram

SmartDraw comes with pre-made wiring diagram templates. Customize hundreds of electrical symbols and quickly drop them into your wiring diagram. Special control handles around each symbol allow you to quickly resize or rotate them as necessary.

To draw a wire, simply click on the Draw Lines option on the left hand side of the drawing area. If you right click on a line, you can change the line's color or thickness and add or remove arrowheads as necessary. Drag a symbol onto the line and it will insert itself and snap into place. Once connected, it will remain connected even if you move the wire.

If you need additional symbols, click the arrow next to the visible library to bring up a drop down menu and select More. You'll be able to search for additional symbols and open any relevant libraries.

Click on Set Line Hops in the SmartPanel to show or hide line hops at crossover points. You can also change the size and shape of your line hops. Select Show Dimensions to show the length of your wires or size of your component.

Click here to read SmartDraw's complete tutorial on how to draw circuit diagrams and other electrical diagrams.

Back to top
Wiring vs Schematic diagram

How is a Wiring Diagram Different from a Schematic?

A schematic shows the plan and function for an electrical circuit, but is not concerned with the physical layout of the wires. Wiring diagrams show how the wires are connected and where they should located in the actual device, as well as the physical connections between all the components.

Back to top

How is a Wiring Diagram Different from a Pictorial Diagram?

Unlike a pictorial diagram, a wiring diagram uses abstract or simplified shapes and lines to show components. Pictorial diagrams are often photos with labels or highly-detailed drawings of the physical components.

Back to top
Wiring vs Pictorial shape
Wiring diagram symbols

Standard Wiring Diagram Symbols

Most symbols used on a wiring diagram look like abstract versions of the real objects they represent. For example, a switch will be a break in the line with a line at an angle to the wire, much like a light switch you can flip on and off. A resistor will be represented with a series of squiggles symbolizing the restriction of current flow. An antenna is a straight line with three small lines branching off at its end, much like a real antenna.

  • Wire, conducts current
  • Fuse, disconnect when current exceeds a certain amount
  • Capacitor, used to store electric charge
  • Toggle Switch, stops the flow of current when open
  • Push Button Switch, momentarily allows current flow when button is pushed in, breaks current when released
  • Battery, stores electric charge and generates a constant voltage
  • Resistor, restricts current flow
  • Ground wire, used for protection
  • Circuit breaker, used to protect a circuit from an overload of current
  • Inductor, a coil that generates a magnetic field
  • Antenna, transmits and receives radio waves
  • Surge protector, used to protect a circuit from a spike in voltage
  • Lamp, generates light when current flows through
  • Diode, allows current to flow in one direction indicated by an arrowhead or triangle on the wire
  • Microphone, converts sound into electrical signal
  • Electrical motor
  • Transformer, changes AC voltage from high to low or vice versa
  • Headphone
  • Thermostat
  • Electrical outlet
  • Junction box
Back to top

Wiring Diagram Examples

The best way to understand wiring diagrams is to look at some examples of wiring diagrams.

Click on any of these wiring diagrams included in SmartDraw and edit them:

More Wiring Diagram Information

Try SmartDraw's Wiring Diagram Software Free

Discover why SmartDraw is the best wiring diagram software today.