6 Modern Home Layout Trends in 2026 and Beyond

Trends in home construction are constantly changing as the needs of families evolve over time. Today's families care about entertaining, working from home, supporting aging parents, and prioritizing flexibility. While open-concept living once dominated every home design, today's layouts are more nuanced, blending openness with function, privacy, and adaptability.

Here's a deep dive into the 6 most important modern home layout trends shaping residential design right now.

Six Modern Home Trends Graphic

Trend 1: Balance Open Concept with Defined Rooms

The classic open concept floor plan started losing its popularity with the 2019 pandemic and the remote work revolution. Families needed to balance openness with the need for quiet spaces and privacy. Modern layouts in 2026 now regularly incorporate strategically defined spaces.

The benefits of open concept layouts are still clear:

  • Better sight lines
  • Easier entertaining
  • More natural light

However, today's families need more defined spaces that feel less chaotic and allow for remote workers to escape TV noise, kids and provide privacy for work calls and focus.

Instead of one large, undefined space, modern layouts are introducing soft boundaries like:

  • Partial walls, glass partitions, or shelving units
  • Ceiling treatments or beams to visually separate zones
  • Changes in flooring or elevation to define areas
  • Built-in nooks like pocket offices or reading corners
Open concept home floor plan

Trend 2: Home Offices are Now a Must-Have

Having a home office is non longer an optional feature for most families, but a requirement. Instead of trying to squeeze in a desk somewhere or working on a kitchen island, layouts now include dedicated and intentional workspaces.

When designing a dedicated home office, consider:

  • Location: Away from kitchens, TVs, and high-traffic areas
  • Acoustics: Doors for privacy
  • Lighting: Natural light with layered task lighting
  • Ergonomics: Enough space for a decent sized desk, comfortable seating, storage, cable management

An extension of the home office trend is the growth of "pocket offices". These are small, built-in workspaces tucked away in hallways and under the stairs that can provide privacy without needing a full room dedicated to working.

Home office floor plan

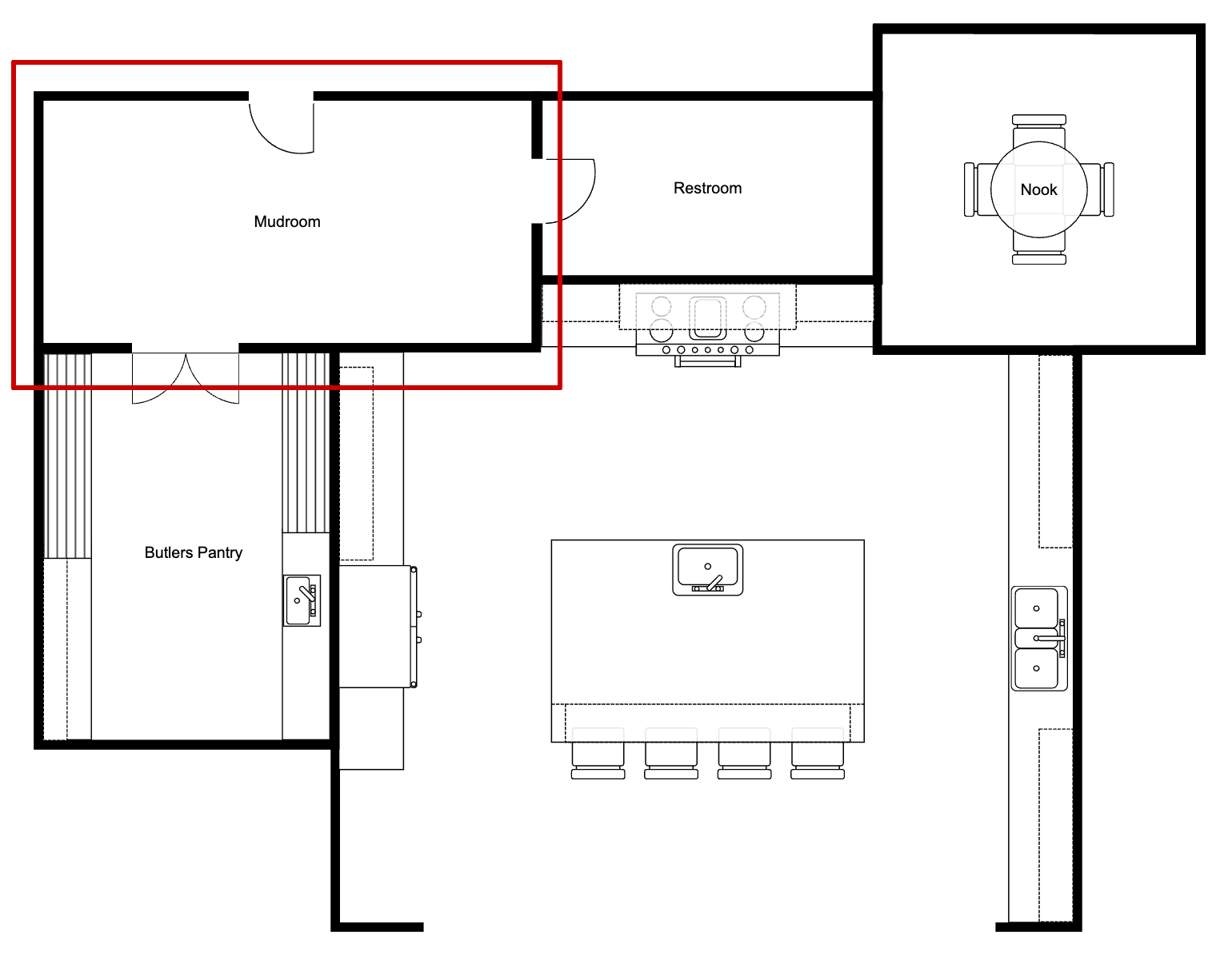
Trend 3: Mudrooms

If you have kids and live in a climate with rain or snow, you know how quickly your house can become a mess of discarded muddy shoes, jackets, umbrellas, and backpacks. Mudrooms create a buffer zone between the outside and the rest of your house. They create a transition space between the outdoors and indoors and help you keep the rest of the house organized and cleaned.

A mudroom can have:

  • Built-in benches or cubbies for each family member
  • Charging stations for devices
  • Shoe and coat storage
  • Pet washing stations
  • Drop zones for backpacks and packages
  • Durable, easy-to-clean flooring

A well-designed mudroom can help reduce clutter and chaos in your home.

Floor plan with mudroom

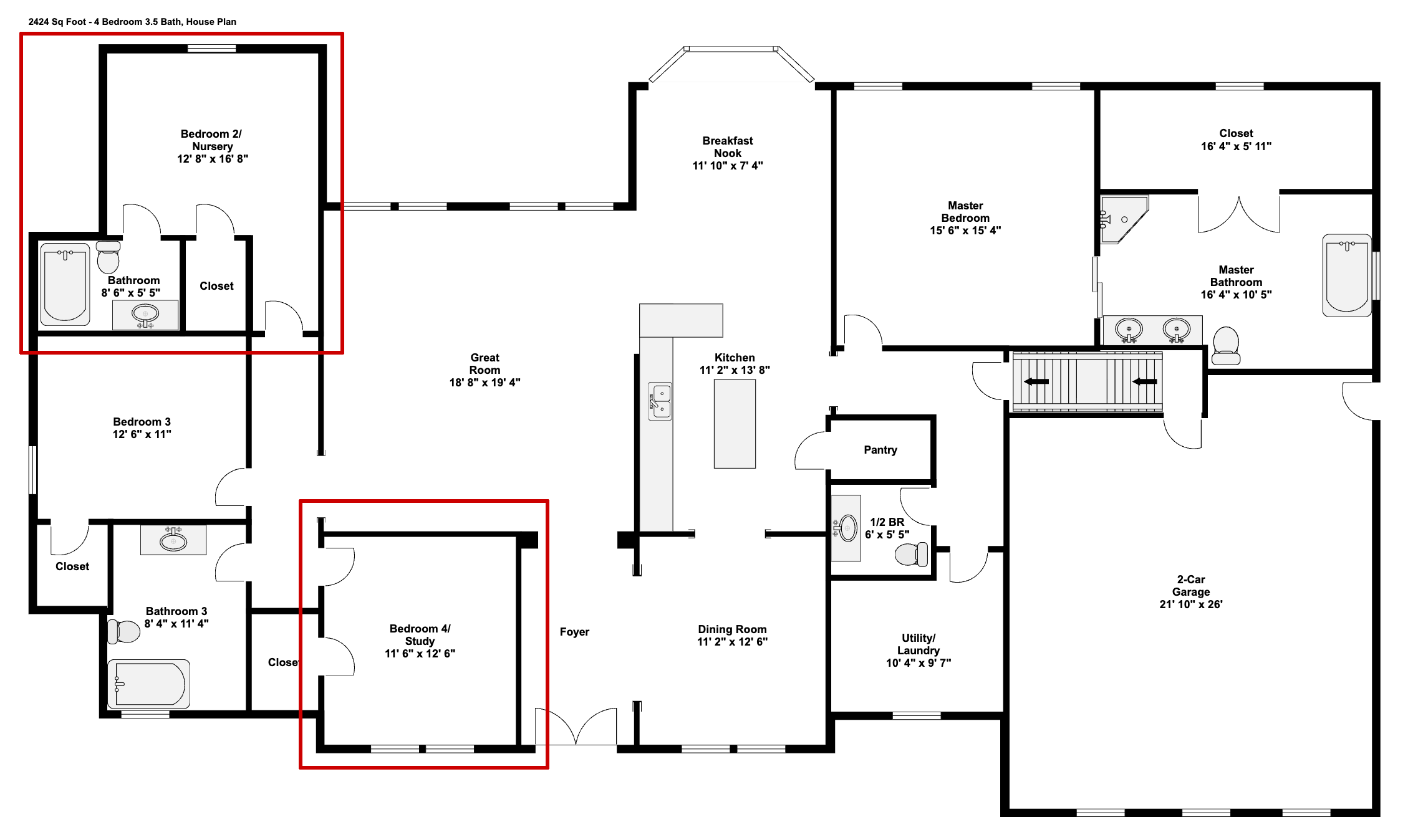
Trend 4: Designing for Change with Flex Rooms

Instead of fixed rooms, many homes now include flexible spaces that can serve multiple functions. With rising costs, many families are staying in their homes longer instead of upgrading and flex rooms help adapt to changing lifestyles like remote work, aging parents, or even just new hobbies.

  • A nursery can become a home office
  • A playroom can become a study space
  • Guest bedroom can become a home gym

Flex rooms help future-proof your home and make every square foot more efficient.

Home floor plan with flex rooms

Trend 5: Indoor-Outdoor Flow

Homes are increasingly designed to blur the line between inside and outside, effectively expanding usable living space without increasing the square footage of a house. Obviously, this works best in milder climates, but even colder areas are now adding covered and even heated outdoor spaces that extend their use year-round.

What creates the perfect flow from indoors to the outdoors?

  • Large sliding or folding glass doors
  • Minimize any steps between the two spaces
  • Consistent flooring
  • Covered patios can feel like outdoor rooms with rugs and furniture

Here are some popular features you should consider:

  • Outdoor dining areas
  • Outdoor kitchen
  • Lounge space with fireplaces and heaters
  • Integrated lighting and sound systems

These hybrid areas will help you entertain and improve the natural light and air flow in the home.

Conceptual outdoor space design

Trend 6: Accessibility and ADA-Friendly Spaces

As more families face caring for aging relatives, homeowners are embracing multi-generational living by incorporating design principles that improve accessibility. Your home now has to work for you, your kids, and potentially elderly relatives with mobility challenges.

Consider designing your home with:

  • Zero step entries to the main house
  • Wider doorways
  • Barrier-free showers
  • Lever-style handles instead of knobs on doors
  • Main-floor bedrooms, bathrooms, and laundry

If you can blend accessibility into aesthetics as part of your design, you can avoid costly renovations later.

Floor plan highlighting accessible areas

SmartDraw Makes Diagramming Easy