House Plan Drawings

Create house plan drawings online faster with the help of built-in templates

The Easy Choice for House Plan Drawings Online

Creating a house plan of your own for the first time can seem intimindating. While every house is different, it may be easier to pick a house plan someone else has drawn and customize it instead of starting from scratch.

SmartDraw comes with dozens of house plan drawings for a wide variety of needs from contemporary houses to duplexes.

Adjust walls easily and drag-and-drop furniture and cabinetry. Move windows and doors or add new ones. SmartDraw makes customizing your house plan easy.

Once you're house plan is complete, you can share it easily with anyone or export it as a PNG, PDF, or JPG.

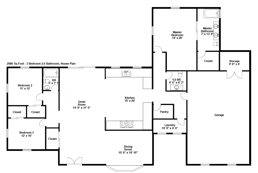
House plan drawing

SmartDraw is Used by Over 85% of the Fortune 500

3M logo
Amazon logo
AT&T logo
Cisco logo
Honeywell logo
Intel logo
Johnson and Johnson logo
Mariott logo
Abbott Labs logo
Motorola logo
Northrop Grumman logo
Oracle logo
Pfizer logo
Thermo Fisher Scientific logo
Verizon logo
Wells Fargo logo
3M logo
Amazon logo
AT&T logo
Cisco logo
Honeywell logo
Intel logo
Johnson and Johnson logo
Mariott logo
Abbott Labs logo
Motorola logo
Northrop Grumman logo
Oracle logo
Pfizer logo
Thermo Fisher Scientific logo
Verizon logo
Wells Fargo logo

Try SmartDraw's House Plan Drawings Online Free

See how easy it is to customize house plan drawings with SmartDraw.